Descriptif
benoît dorsaz immobilier vous propose une villa à construire de 4,5 pièces d'une surface de 154 m2 pondérés sur une parcelle de 595 m2 située à St-Pierre-de-Clages.
Le projet est modulable et les finitions (sols, peintures, cuisine, salle d'eau) sont au choix de l'acquéreur.
Sa disposition est la suivante :
Rez :
Etage :
Annexes :
Une seconde villa est aussi dans le projet de construction pour un budget de CHF 1'100'000.-
N'hésitez pas à nous contacter, dossier et visite du chantier sur demande.
Pour de plus amples renseignements : david.reuse@bdimmo.ch / David 079 960 40 07
Le projet est modulable et les finitions (sols, peintures, cuisine, salle d'eau) sont au choix de l'acquéreur.
Sa disposition est la suivante :
Rez :
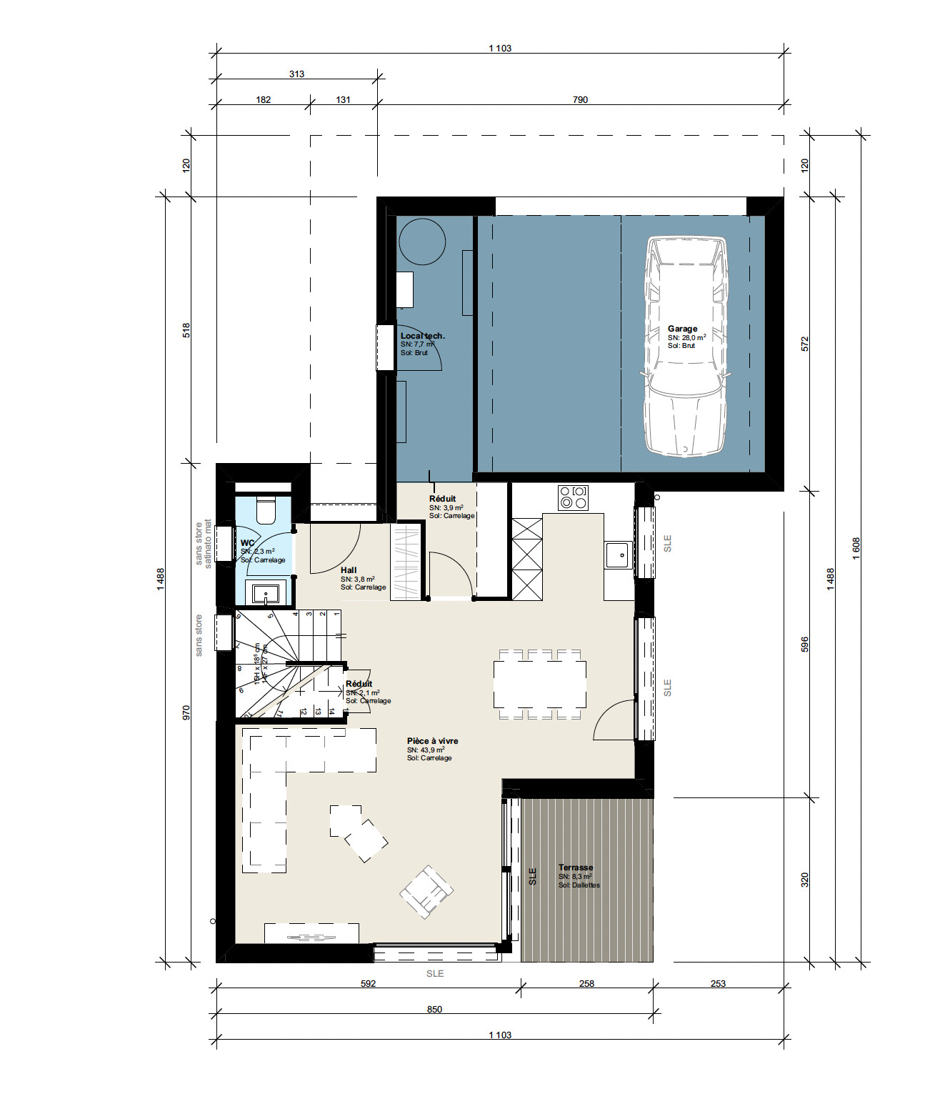
- Hall d'entrée
- Salon avec accès terrasse
- Cuisine ouverte
- Economat
- WC visiteurs (wc, lavabo)
- Terrasse couverte (8,3 m2)
Etage :
- Chambre parentale avec dressing et salle d'eau (wc, lavabo, douche)
- Accès terrasse depuis chambre parentale (21,7 m2)
- Deux chambres
- Salle d'eau (wc, lavabo, baignoire, branchement pour colonne de lavage)
Annexes :
- Garage double
- Local technique
Une seconde villa est aussi dans le projet de construction pour un budget de CHF 1'100'000.-
N'hésitez pas à nous contacter, dossier et visite du chantier sur demande.
Pour de plus amples renseignements : david.reuse@bdimmo.ch / David 079 960 40 07
Commodités
Environnement
- Village
- Vignoble
- Commerces
- Banque
- Poste
- Restaurant(s)
- Pharmacie
- Gare
- Arrêt de bus
Extérieur
- Terrasse(s)
- Jardin
- Garage
Intérieur
- Garage
- Cuisine ouverte
- WC visiteurs
- WC séparés
- Réduit
Equipement
- Cuisine équipée
- Plaques vitrocéramiques
- Four
- Réfrigérateur
- Lave-vaisselle
- Branchements pour colonne de lavage
- Baignoire
- Douche
- Téléphone
- Téléréseau
Distances
Gare
348 m
4'
1'
Ecole primaire
1.87 km
-
5'
Ecole secondaire
5.6 km
-
10'
Commerces
1.64 km
-
5'
Poste
1.47 km
-
4'
Banque
1.63 km
-
4'
Restaurants
145 m
3'
1'
Parc / Espace vert
1.26 km
-
4'





