Descriptif
benoît dorsaz immobilier Sàrl vous présente cette magnifique villa de 5,5 pièces en cours de construction de 213 m2 pondérés sur deux niveaux située à Grimisuat.
Emplacement stratégique à moins de 10 minutes de Sion avec une vue sur les montagnes et le vignoble.
Disposition de la villa
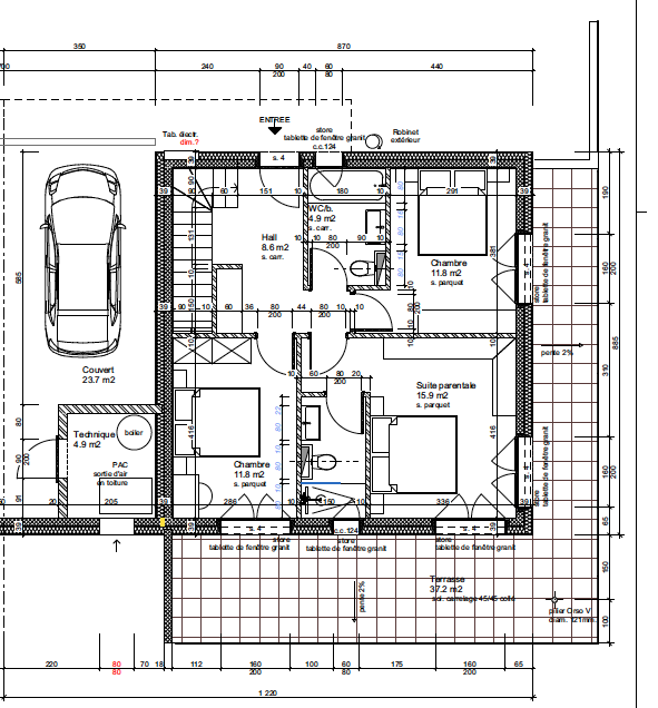
Rez-supérieur
- Hall d'entrée
- Suite parentale avec salle d'eau (douche, lavabo, wc)
- Deux chambres
- Salle d'eau (baignoire, lavabo, wc)
- Terrasse d'environ 37 m2 avec accès depuis toutes les chambres
Rez-inférieur
- Magnifique séjour de plus de 50 m2
- Cuisine ouverte
- Salle d'eau (douche, lavabo, wc)
- Chambre
- Économat
- Cave / Buanderie
- Terrasse d'environ 37 m2 avec accès à la pelouse privative
Annexes
- Local technique
- Place de parc couverte
- Quatre places de parc extérieures
Descriptif technique à disposition.
N'hésitez pas à nous contacter pour de plus amples renseignements ou organiser une visite du chantier : david.reuse@bdimmo.ch / David 079 960 40 07
Commodités
Environnement
- Village
- Quartier de villas
- Verdoyant
- Montagnes
- Vignoble
- Commerces
- Banque
- Poste
- Restaurant(s)
- Arrêt de bus
- Enfants bienvenus
- Aire de jeux
- Ecole primaire
Extérieur
- Terrasse(s)
- Jardin
Intérieur
- Cuisine ouverte
- WC visiteurs
- Economat
- Cave
Equipement
- Cuisine équipée
- Plaques vitrocéramiques
- Four
- Réfrigérateur
- Lave-vaisselle
- Branchements pour colonne de lavage
- Baignoire
- Douche






